Frank W. Thomas House
Frank Thomas House is located in Illinois
Frank Thomas House
Frank Thomas House is located in the United States
Frank Thomas House
Location210 Forest Ave., Oak Park, Illinois
Coordinates41°53′26″N 87°48′00″W / 41.89056°N 87.80000°W / 41.89056; -87.80000
Area0.3 acres (0.12 ha)
Built1901
ArchitectFrank Lloyd Wright
Architectural stylePrairie style
NRHP reference No.72000455[1]
Added to NRHPSeptember 14, 1972
Frank W. Thomas House (1901), by Frank Lloyd Wright
Frank W. Thomas House (1901)
Frank W. Thomas House (1901), 210 Forest Avenue, Oak Park, IL
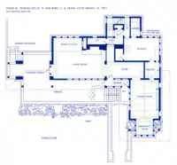
Main floor plan
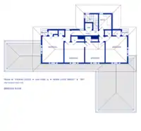
Bedroom floor plan

The Frank W. Thomas House is a historic house located at 210 Forest Avenue in the Chicago suburb of Oak Park, Illinois, United States. The building was designed by architect Frank Lloyd Wright in 1901 and cast in the Wright-developed Prairie School of Architecture. By Wright's own definition, this was the first of the Prairie houses - the rooms are elevated, and there is no basement. The house also includes many of the features which became associated with the style, such as a low roof with broad overhangs, casement windows, built-in shelves and cabinets, ornate leaded glass windows and central hearths/fireplaces. Tallmadge & Watson, a Chicago firm that became part of the Prairie School of Architects, added an addition to the rear of the house in 1923.[2]

On September 14, 1972, the Frank Thomas House was added to the U.S. National Register of Historic Places.[1]

See also

References

  • Heinz, Thomas A. The Vision of Frank Lloyd Wright, S. Webb & Sons., Isle of Anglesey, UK: 2002, pp. 8185, ISBN 1-85361-504-8.
  • Storrer, William Allin. The Frank Lloyd Wright Companion. University Of Chicago Press, 2006, ISBN 0-226-77621-2 (S.067).

Notes

  1. 1 2 "National Register Information System". National Register of Historic Places. National Park Service. July 9, 2010.
  2. Bell, Robert A. (July 4, 1972). "National Register of Historic Places Inventory - Nomination Form: Frank Thomas Residence" (PDF). Illinois Historic Preservation Agency. Archived from the original (PDF) on April 15, 2016. Retrieved April 2, 2016.
This article is issued from Wikipedia. The text is licensed under Creative Commons - Attribution - Sharealike. Additional terms may apply for the media files.